Balatonmáriafürdőn, 50m-re a strandtól!

26184 Nyomtatás Ajánlás Facebook

Tökéletes befektetési lehetőség közvetlen a vízpart mellett!

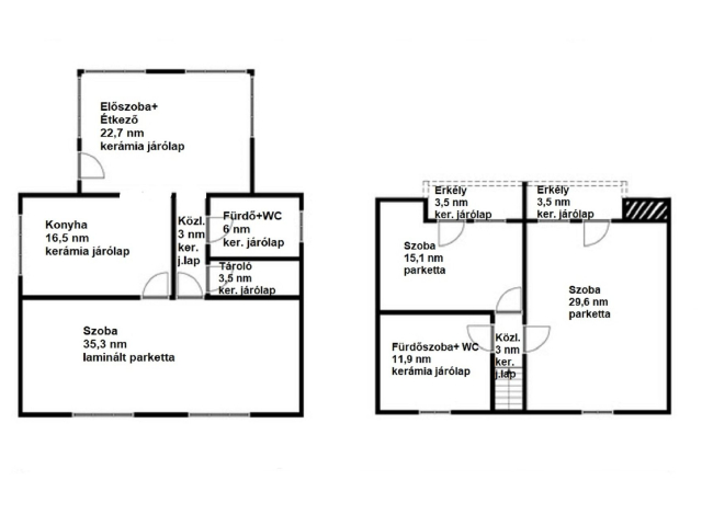
Balatonmáriafürdőn, közvetlen a Balaton mellett eladó ez a tágas, jó elrendezésű nyaraló. A nyaralóhoz közel 600 nm nagyságú területen helyezkedik el. A területen egy újabb építésű melléképület is helyet kapott.
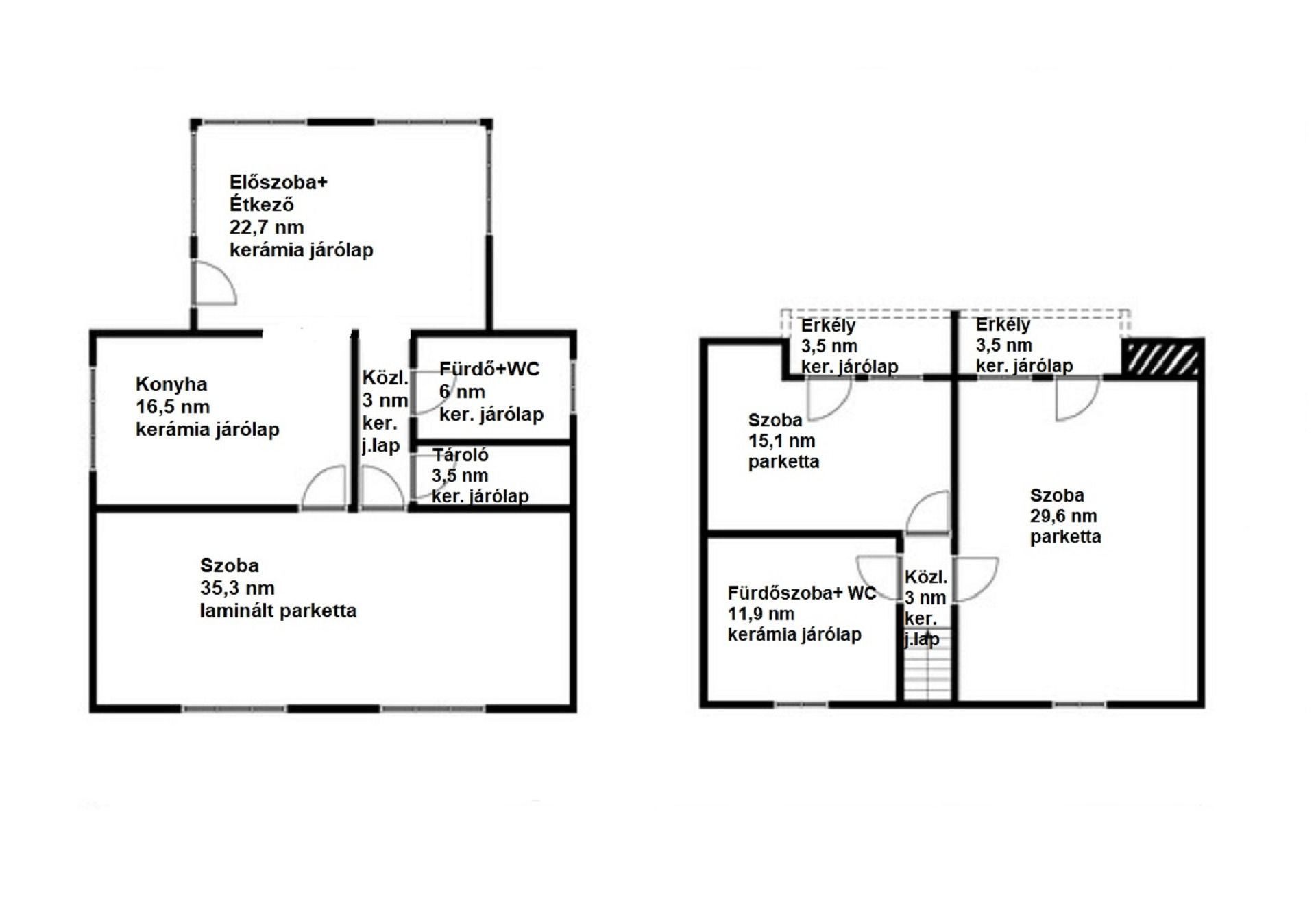
Ez a ritka elhelyezkedésű ingatlan kiváló statikai állapotnak örvend. A külső nyílászárók cseréje megtörtént. A fürdőszoba és a hidegburkolatok néhány évvel ezelőtt megújultak. A tetőtéri szobák, valamint a földszinti, hatalmas méretű szoba klímával ellátottak. Az ingatlan helyiségei: a földszinten egy tágas szoba, fürdőszoba, konyha, közlekedő, tároló, egy nappali étkezővel, a tetőtérben pedig 2 teljes értékű szoba, illetve fürdőszoba.
A nyaraló akár üdültetésre, akár saját felhasználásra is tökéletes választás. A balatoni strandtól mindösszesen 50m -re található az épület.
Iroda: Nagykanizsa, Platán sor 7.

Hohl József
PRÉMIUM

Hohl József

10 éve a Városi Ingatlaniroda tagja
Régióigazgató
Nagykanizsa
+36 (30) 608 6857
Észrevétel a hirdetéssel kapcsolatban
Egy ingatlanos naplója