Jó állapotú családi ház Tótszerdahelyen

70 Nyomtatás Ajánlás Facebook

Zala vármegyében, a horvát határvidéken, Letenye kisváros szomszédságában, Tótszerdahely településen keresi új tulajdonosát ez a rengeteg lehetőséget magában rejtő családi ház. A telepölés barátságos, biztonságos. A házhoz egy kicsi, közel 800 nm nagyságú sík terület tartozik.

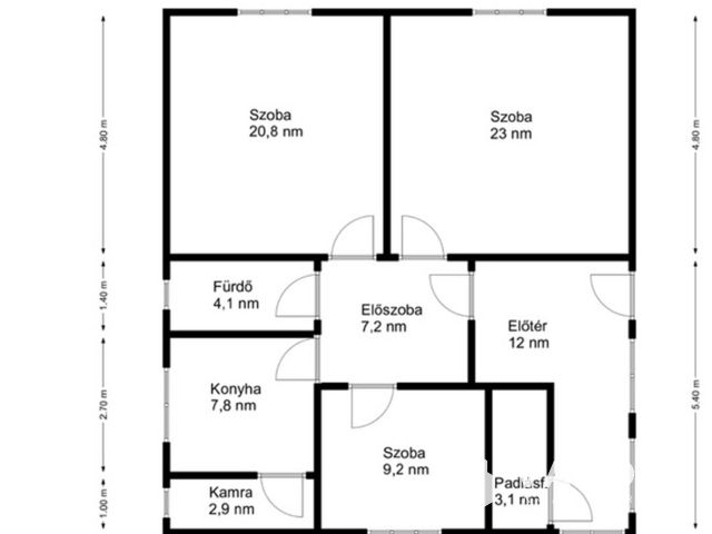
Az ingatlan jelen állapotában is lakható, de korszerűsítéssel igazi modern élettér kialakítható belőle. Az épület statikailag remek állapotban van. Az előtér ablakai már megújultak, a többi felújítási munkálat az új tulajdonosra vár. A lakótér fűtéséről konvektorok, valamint egy kandalló gondoskodik. A lakótér helyiségei: 2 tágas, és egy kisebb szoba, konyha, kamra, fürdőszoba, előtér, előszoba, padlásfeljáró.

Az ingatlan tökéletes lehetőség családok számára, akik csendes, falusias környezetben szeretnék kialakítani új életterüket. A településhez 3 kisebb horgásztó is tartozik, valamint számos túraútvonal található a környéken. A település, valamint az ingatlan is megfelel a falusi csok szabályainak.

Megtekintéshez minden esetben telefonos időpontegyeztetés szükséges. Külső fotókért, vagy további kérdésekért keressen bizalommal.
Stolcz Gábor (prémium ingatlanértékesítő) +36 30 551 8808

Stolcz Gábor
PRÉMIUM

Stolcz Gábor

9 éve a Városi Ingatlaniroda tagja
Ingatlanértékesítő
Letenye
+36 (30) 551 8808
Észrevétel a hirdetéssel kapcsolatban
Egy ingatlanos naplója