Napfényes családi otthon Újlipótvárosban a Gogol utcában

1505 Nyomtatás Ajánlás Facebook

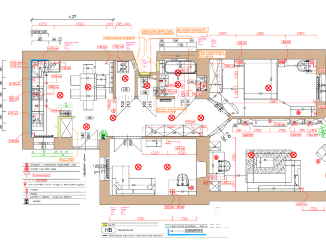
Budapest XIII. kerületének egyik legkedveltebb részén, Újlipótváros szívében, a Gogol utcában kínálunk megvételre egy 91 m²-es, tágas és rendkívül világos, tégla építésű lakást.

Az ingatlan 2021-ben teljes körű felújításon esett át, így műszaki és esztétikai szempontból is korszerű állapotban várja új tulajdonosát. A nyílászárók újak, az árnyékolásról elektromos alumínium redőnyök gondoskodnak.
A praktikus elrendezésnek köszönhetően mindhárom szoba kényelmes méretű, a 3,60 méteres belmagasság pedig igazi nagypolgári hangulatot teremt.
Egy külön helyiség (cca. 3 m²) félszobaként funkcionál, jelenleg mosókonyha és tároló szerepet tölt be, ami kifejezetten praktikus a mindennapokban. A lakáshoz a pinceszinten 3 m²-es saját tároló tartozik.

A liftes társasház 30 lakásos, rendezett, barátságos lakóközösséggel – jellemzően kedves, hosszú ideje itt élő tulajdonosokkal. A lépcsőház és a homlokzat állapota átlagos. A közös költség 20.500 Ft, amely magában foglalja a szemétszállítást, a lépcsőházi takarítást és világítást, a lift karbantartását, valamint a társasházi biztosítást is.

A lokáció kiváló: M3 metrómegálló mindössze 2 perc séta, Deák tér 3 megálló.
A közelben megtalálható a város egyik legnépszerűbb óvodája, a Meséskert Tagóvoda, emellett számos bölcsőde és iskola is elérhető. A Lehel Csarnok, valamint Aldi, Lidl, Spar üzletek, éttermek és kávézók sokasága gondoskodik a kényelmes, élhető mindennapokról.

Ez a lakás ideális választás pároknak és gyermekes családoknak egyaránt, akik Újlipótváros egyik legélhetőbb részén szeretnének otthonra találni.

A lépcsőházról és a társasházról készült további képekért és információkért keressen bizalommal – akár hétvégén is.

Gergics Róbert
PRÉMIUM

Gergics Róbert

Karrierigazgató
Budapest
+36 (20) 262 6304
Észrevétel a hirdetéssel kapcsolatban
Egy ingatlanos naplója